image/svg+xml Evening Star ® A LAKESHORE COMMUNITY

A premier manufactured Home Community in Hollywood, FL

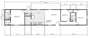
Custom Homes

planA

Bookmark the permalink.

© 2020 Lakeshore Communities. All rights reserved.